Sve agencije za nekretnine na jednom mestu

WEBNekretnine - oglasi za nekretnine

Nekretnine po lokacijama:   Srbija  Crna Gora  Hrvatska  Bosna i Hercegovina  Slovenija  Ostale države
   LOG IN  |   REGISTRACIJA   |   UNOS OGLASA   |   POSLEDNJI OGLASI   |   NAJČITANIJI OGLASI   |   PREGLED SLIKA   |   PRVA STRANICA  
Subota, 14. Februar 2026. godineTrenutno oglasa na sajtu 11.906 (44.562 slika)Ukupno čitanja oglasa 133.168.244Ukupno prodavaca na sajtu 17.920
 
Gradjevinsko zemljiste u Vrdniku

Tekst oglasa
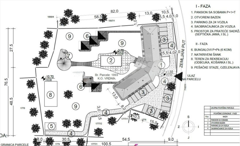
Plac, povrsine 6308 kvadrata, se nalazi u srcu nacionalnog parka Fruske Gore na nadmorskoj visini 360 m.
Dozvoljeno je graditi stambeno-poslovni objekat spratnosti P+3+PK na osnovu informacije o lokaciji dobijene od sluzbe za zastite zivotne sredine i urbanizma
Dozvoljen indeks zauzetosti parcele u osnovi je 50 posto od velicine placa sto znaci da se moze graditi cca 12000 kvadrata stambenog i poslovnog prostora.
Panorama Star DOO, firma u mom vlasnistvu, poseduje idejni projekat pansiona 1200 kvadrata; bungalovi, bazen i otvoreni bar- 850 kvadrata.
Za idejni projekat ovog kompleksa su dobijeni urbanisticko tehnicki uslovi.
Na placu je uradjena busotina bunara termalne vode do 405 m gde je pronadjena termalna voda, cca 32 stepena. Busotina nije zavrsena.
Posedujemo sve potrebne dozvole sto se tice gradjevinskog projekta i busotine termalne vode.
Dodatne informacije na https://banemilosavljev.wixsite.com/panoramastar
Kontakt:063514984


 
Podaci o prodavcu
Ime prodavca ili agencije za nekretnine Prodavac ticketinfo
E-mail adresa prodavca ili agencije za nekretnine E-mail adresa Kontaktirajte prodavca
Telefonski broj prodavca ili agencije za nekretnine Telefonski broj -
Adresa prodavca ili agencije za nekretnine Adresa
 
   
   

Osnovni podaci o objektu
DržavaSrbija
GradVrdnik
Naziv uliceMorintovo
Cena 1.000 €
Površina m²6.308 m2

Dodatni podaci
Postoje UTU uslovi
Dovedena struja, voda, telefon
   
   
Ostalo
Broj pregleda ovog oglasa  9
Datum unosa 13.02.2026. 20:49
 
 
Približna lokacija nekretnine
 
Nekretnina: Gradjevinsko zemljiste u Vrdniku Nekretnina: Gradjevinsko zemljiste u Vrdniku Nekretnina: Gradjevinsko zemljiste u Vrdniku Nekretnina: Gradjevinsko zemljiste u Vrdniku Nekretnina: Gradjevinsko zemljiste u Vrdniku
Nekretnine iz ove kategorijeOstali oglasi iz ove kategorijeOglasi za nekretnine koje je uneo ovaj prodavacOglasi ovog prodavcaKontaktirajte prodavca ove nekretnineKontaktirajte prodavca Štampanje oglasa za nekretnine Štampa