Sve agencije za nekretnine na jednom mestu

WEBNekretnine - oglasi za nekretnine

Nekretnine po lokacijama:   Srbija  Crna Gora  Hrvatska  Bosna i Hercegovina  Slovenija  Ostale države
   LOG IN  |   REGISTRACIJA   |   UNOS OGLASA   |   POSLEDNJI OGLASI   |   NAJČITANIJI OGLASI   |   PREGLED SLIKA   |   PRVA STRANICA  
Utorak, 28. April 2026. godineTrenutno oglasa na sajtu 11.493 (42.845 slika)Ukupno čitanja oglasa 134.754.662Ukupno prodavaca na sajtu 17.927
 
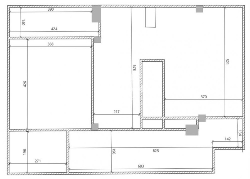
2.0 stan na top lokaciji ID#136464

Tekst oglasa
Zgrada uredna i održavana. Video nadzor i interfon. Parkići za decu, osnovna škola, vrtić, prodavnice, izlaz na auto - put, u blizini je most na Adi. Pogodan i kao investicija, za izdavanje i za miran, porodičan život. Internet, KaTV, 5 liftova, prilaz za invalide. Hodnik iz koga se ulazi u dnevnu sobu, kuhinja dvostrana, trpezarija, spavaća soba, kupatilo, lođa na koju je izlaz iz trpezarije i spavaće sobe. Podrum. Renoviran stan. Gleda na park, istočno orijentisan. Prostrane prostorije. Ugradni plakari u hodniku. Zastakljena lođa. PVC. Moguće je adaptirati u 2.5. agencijska provizija 2%

Lift: da
Lođa: da
Podrum: da
Odmah useljiv: da
Renovirano: da
Uknjižen: da

 
Podaci o prodavcu
Ime prodavca ili agencije za nekretnine Prodavac Lider nekretnine Winner
E-mail adresa prodavca ili agencije za nekretnine E-mail adresa brendlidernekretnine@gmail.com
Telefonski broj prodavca ili agencije za nekretnine Telefonski broj +381113 116-019
Adresa prodavca ili agencije za nekretnine Adresa Bulevar Zorana Đinđića 98, Beograd
 
   
Broj u Registru posrednika   992  

Osnovni podaci o objektu
DržavaSrbija
GradBeograd
Naziv uliceBulevar Milutina Milankovića
Cena 240.000 €  (3.380 €/m2)
Površina m²71 m2
Broj soba2
Sprat5

Dodatni podaci
Starost objekta u godinama
Ima terasu
Ima liftDa
Način grejanja
Telefonska linija
Ima garažu
   
   
Ostalo
Broj pregleda ovog oglasa  21
Poslednji put ažuriran 25.04.2026. 15:48
Datum unosa 26.04.2026. 08:06
 
 
 
Nekretnina: 2.0 stan na top lokaciji ID#136464 Nekretnina: 2.0 stan na top lokaciji ID#136464 Nekretnina: 2.0 stan na top lokaciji ID#136464 Nekretnina: 2.0 stan na top lokaciji ID#136464 Nekretnina: 2.0 stan na top lokaciji ID#136464
Nekretnine iz ove kategorijeOstali oglasi iz ove kategorijeOglasi za nekretnine koje je uneo ovaj prodavacOglasi ovog prodavcaKontaktirajte prodavca ove nekretnineKontaktirajte prodavca Štampanje oglasa za nekretnine Štampa