Sve agencije za nekretnine na jednom mestu

WEBNekretnine - oglasi za nekretnine

Nekretnine po lokacijama:   Srbija  Crna Gora  Hrvatska  Bosna i Hercegovina  Slovenija  Ostale države
   LOG IN  |   REGISTRACIJA   |   UNOS OGLASA   |   POSLEDNJI OGLASI   |   NAJČITANIJI OGLASI   |   PREGLED SLIKA   |   PRVA STRANICA  
Nedelja, 30. Novembar 2025. godineTrenutno oglasa na sajtu 12.247 (46.009 slika)Ukupno čitanja oglasa 131.540.355Ukupno prodavaca na sajtu 17.913
 
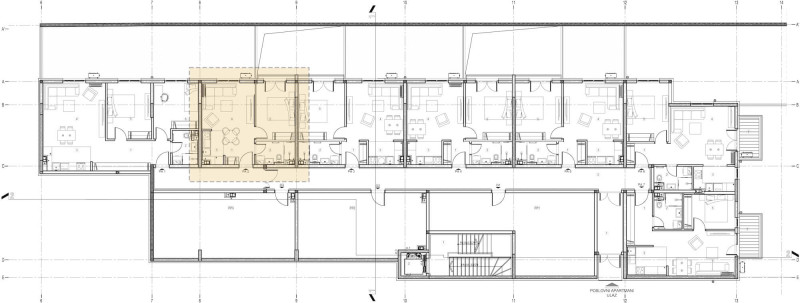
PAMETNA INVESTICIJA-POSLOVNI PROSTOR U SRCU VELIKOG MOKROG LUGA

Tekst oglasa
U ponudi je poslovni apartman površine 36,43 m², smešten u suterenu modernog kompleksa Golden View VML U Velikom Mokrom Lugu , na Zvezdari.
Ovaj apartman nudi izuzetnu fleksibilnost u organizaciji prostora – idealan je kao kancelarijski prostor, studio, kozmetički salon, ordinacija ili kao investicija za kratkoročni najam.

Kvalitetna gradnja, savremeni materijali i moderna arhitektura čine ovaj prostor dugoročno isplativom investicijom.
Objekat poseduje odličnu ventilaciju, prirodno osvetljenje kroz veće prozore i obezbeđen pristup iz zajedničkog hodnika.

Lokacija: Veliki Mokri Lug — perspektivno naselje u razvoju, odlično povezano sa autoputem, obilaznicom i centralnim delovima Beograda, sa razvijenom infrastrukturom i pristupom svim neophodnim sadržajima.

Cena: 2.000 €/m² + PDV (DIREKTNA PRODAJA)

Prednosti:

Fleksibilan poslovni prostor

Mogućnost povrata PDV-a za pravna lica

Novogradnja vrhunskog kvaliteta

Idealno za biznis ili investici

 
Podaci o prodavcu
Ime prodavca ili agencije za nekretnine Prodavac Golden View VML
E-mail adresa prodavca ili agencije za nekretnine E-mail adresa majapetrov87@icloud.com
Telefonski broj prodavca ili agencije za nekretnine Telefonski broj (062) 333-880
Adresa prodavca ili agencije za nekretnine Adresa Ristin Potok 4g
 
   
   

Osnovni podaci o objektu
DržavaSrbija
GradBeograd
Naziv uliceristin potok 4g
Cena 87.432 €  (2.429 €/m2)
Površina m²36 m2

Dodatni podaci
Visina unutrašnjosti (m)
Telefonska linija
   
   
Ostalo
Broj pregleda ovog oglasa  171
Datum unosa 28.10.2025. 17:40
 
 
Približna lokacija nekretnine
 
Nekretnina: PAMETNA INVESTICIJA-POSLOVNI PROSTOR U SRCU VELIKOG MOKROG LUGA Nekretnina: PAMETNA INVESTICIJA-POSLOVNI PROSTOR U SRCU VELIKOG MOKROG LUGA Nekretnina: PAMETNA INVESTICIJA-POSLOVNI PROSTOR U SRCU VELIKOG MOKROG LUGA Nekretnina: PAMETNA INVESTICIJA-POSLOVNI PROSTOR U SRCU VELIKOG MOKROG LUGA Nekretnina: PAMETNA INVESTICIJA-POSLOVNI PROSTOR U SRCU VELIKOG MOKROG LUGA
Nekretnine iz ove kategorijeOstali oglasi iz ove kategorijeOglasi za nekretnine koje je uneo ovaj prodavacOglasi ovog prodavcaKontaktirajte prodavca ove nekretnineKontaktirajte prodavca Štampanje oglasa za nekretnine Štampa